

Adresa:
Hornychova
Lomnice nad Popelkou
GPS:
50.533411, 15.377785
bytový dům
Olymp II.
- Bytový dům Olymp II je ideálním místem pro ty, kteří hledají místečko pro život na malém městě na okraji Českého ráje v tzv. Malých Krkonoších.
- V docházkové vzdálenosti najdete veškeré potřebné služby , sportovní , kulturní a volnočasová zařízení.
- Bytový dům disponuje 17 byty od 1+kk až po 4+k vč. balkónu či terasy
- Byt č. 1 v přízemí je bezbariérový
- Každý byt má k dispozici bezplatně parkovací místo a sklepní uzamykatelný prostor.
- Předběžný termín dokončení 12/2026 – 4/2027
volných bytů
celkem
ve třech patrech
I. patro
1
pokoje - 3+ kk
plocha - 89,9 m2
balkón - x
terasa - 8,5 m2
2
pokoje - 3+ kk
plocha - 79,7 m2
balkón - x
terasa - 8,5 m2

3
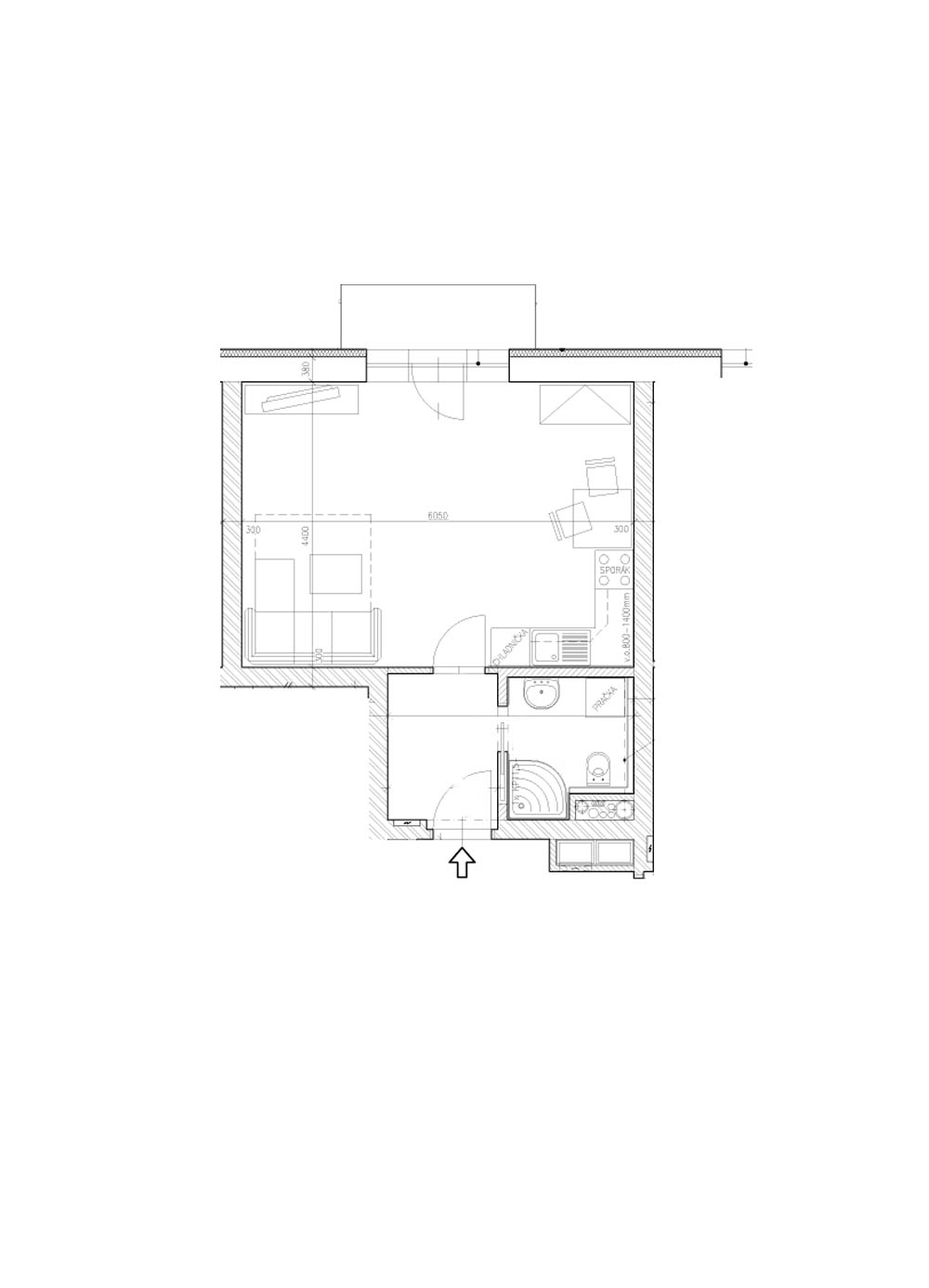
pokoje - 1+ kk
plocha - 41,5 m2
balkón - x
terasa - x

4
pokoje - 3+ kk
plocha - 79,7 m2
balkón - x
terasa - 8.5 m2
5
pokoje - 3+ kk
plocha - 89.9 m2
balkón - x
terasa - 5,8 m2
II. patro
6
pokoje - 1+ kk
plocha - 35,6 m2
balkón - 3 m2
terasa - x
7
pokoje - 1+ kk
plocha - 35,6 m2
balkón - 3 m2
terasa - x
8
pokoje - 2+ kk
plocha - 65,6 m2
balkón - 9,9 m2
terasa - x
9
pokoje - 3+ kk
plocha - 77,5 m2
balkón - 15.8 m2
terasa - x
10
pokoje - 1+ kk
plocha - 33,3 m2
balkón - 7 m2
terasa - x
11
pokoje - 3+ kk
plocha - 77,5 m2
balkón - 15,8 m2
terasa - x
12
pokoje - 2+ kk
plocha - 65,6 m2
balkón - 9,9 m2
terasa - x
III. patro
13
pokoje - 1+ kk
plocha - 35,6 m2
balkón - 3 m2
terasa - x

14
pokoje - 1+ kk
plocha - 35,6 m2
balkón - 3 m2
terasa - x
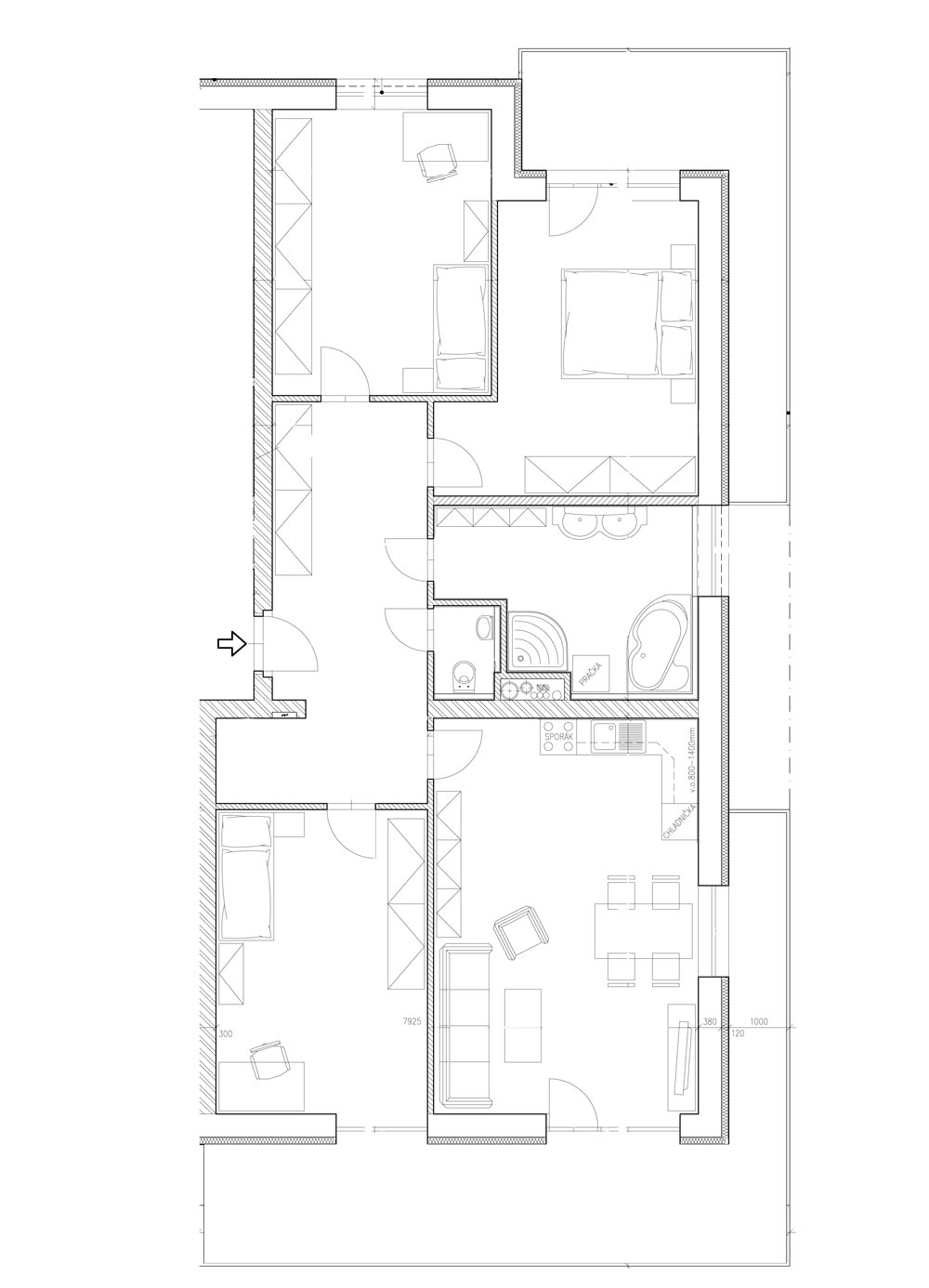
15
pokoje - 4+ kk
plocha - 116,8 m2
balkón - 31 m2
terasa - x
16
pokoje - 2+ kk
plocha - 67,2 m2
balkón - 20,6 m2
terasa - x

17
pokoje - 4+ kk
plocha - 116,8 m2
balkón - 31 m2
terasa - x
Ideální místo k životu
Lomnice nad Popelkou
Naše město je pomyslnou hranicí mezi Českým rájem a Podkrkonoším. Leží v okrese Semily, v Libereckém kraji, ale do města Jičína to je pouze dvanáct kilometrů. I přesto, že pět tisíc obyvatel Lomnici řadí mezi malá města, má rozhodně co nabídnout. Obchody, školky, školy, zdravotnická zařízení, sportovní aktivity jsou samozřejmostí. Ve městě je i mnoho pracovních příležitostí v různých oborech. Hlavním lákadlem ale není pouze klid a dostupnost služeb. Lomnice nad Popelkou a jeho okolí je protkáno cyklistickými a turistickými trasami, okolní krajina totiž doslova vyzývá k relaxaci a výletům. Jelikož město leží nedaleko Krkonoš, je v zimě i čas na sněhové radovánky.
Naše byty OLYMP jsou tedy vhodným místem pro Váš naplněný život.

Kousek do ráje i do hor
Vzdálenosti
- Praha - 102 km
- Liberec - 50 km
- Hradec Králové - 55 km
- Mladá Boleslav - 48 km
- Turnov - 20 km
- Jilemnice - 19 km
- Jičín - 13 km
- Semily - 13 km
- Nová Paka - 14 km
- Vrchlabí - 29 km
- Harrachov - 38 km















